Проекты
Квартиры
Для бизнеса
Акции
Ипотека
Ремонт
О компании
Партнерам
Партнерам
Тендеры
Клиентам
Партнеры
Риэлторам
Инвестиционная деятельность
8 861 205 16 90
Личный кабинет
Все города
Все города
Краснодар
Ростов-на-Дону
Казань
Сочи
Новороссийск
Северская
Анапа
Азовская
Москва
Тюмень
Ялта
Тихорецк
Туапсе
Армавир
Динская
Главная
•
Список помещений
•
Босфор
•
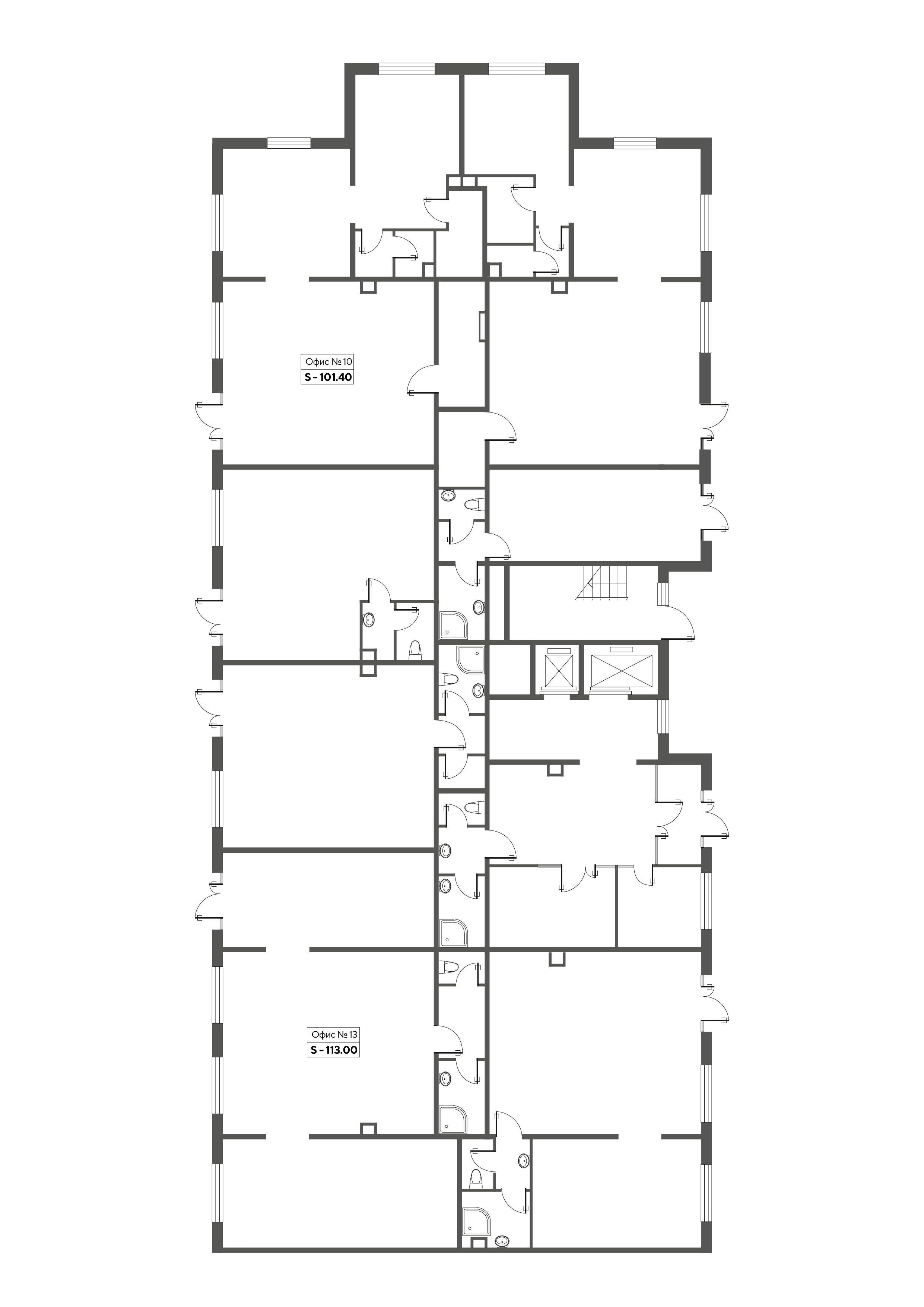
Офисное помещение 10 (БТИ 66;67;68;69)
•
Вернуться назад
Нажмите на изображение, чтобы увеличить
Планировка
На генплане
Подъезд
Кафе
Офисное помещение 10 (БТИ 66;67;68;69) Босфор – 4 Литер
17,846,400 ₽
176,000 ₽ за м²
В избранное
В сравнение
ЖК
Босфор
Дата сдачи
III кв. 2022
цена за м
176,000 руб.
Этаж
1 / 19
Общая площадь
101,4 м²
Литер
4 Литер
Номер квартиры
10
Город
Новороссийск
Адрес
Краснодарский край, Новороссийск, пересечение ул.Южная и пр.Дзержинского
Забронировать
Консультация
Отправить в Telegram
Отправить в Whatsapp
Отправить на почту
Скопировать ссылку
Подходит для
Кафе
17,846,400 ₽
Офисное помещение 10 (БТИ 66;67;68;69) 101,4 м²
Отправить в Telegram
Отправить в Whatsapp
Отправить на почту
Скопировать ссылку
Забронировать
Фотогалерея комплекса
И еще 2 фотографий
Посмотреть все
И еще 2 фотографий
Посмотреть все
Параметры кредитования
Проект
Любой
Сумма кредита:
0 руб.
Получить консультацию
Показать предложения
Данный расчет приведен для общей информации и не является публичной офертой
Найдено 0 банковских предложений
Название банка
Процентная ставка
Срок кредита
Первый взнос
Платеж в месяц
Узнайте первыми об акциях и выгодных предложениях
Имя*
Email*
Отправить
Согласие на
обработку персональных данных
Согласие на
маркетинговые коммуникации и на передачу данных